wolne lokale
Biecz Pokaż na mapie ›
Odświeżone: Niedziela, 21 Wrzesień, 2025 11:54
Szczegóły ogłoszenia
- Kategoria: Biura i lokale / Do wynajęcia
- Przeznaczenie:Biurowe
- Powierzchnia:131,55 m2
- Sprzedaż:Bez pośredników
Opis oferty
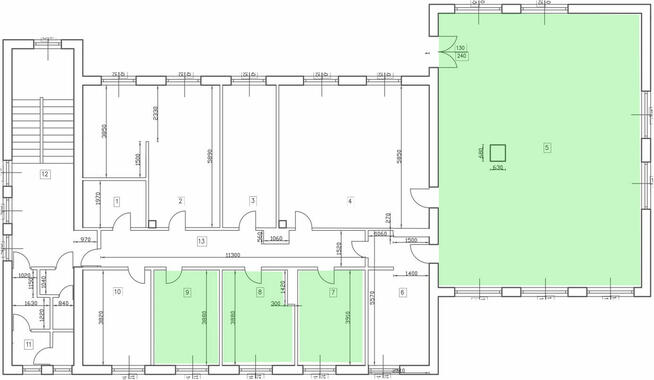
Poczta Polska S.A. Region Infrastruktury Południe II oferuje w miejscowościBiecz ul. Kazimierza Wielkiego 9
Lokale o charakterze biurowo-usługowym będące przedmiotem wynajmu łącznej powierzchni 131,55 m2 znajdują się na 1 piętrze budynku, w części 3-kondygnacyjnej, z wejściem głównym od strony parkingu przez klatkę schodową. Przedmiot wynajmu składa się z następujących lokali:
lok. nr 5 o pow. 98,29 m2
lok. nr 7 o pow. 11,46 m2
lok. nr 8 o pow. 11,25 m2
lok. nr 9 o pow. 10,55 m2
Sprawdź zainteresowanie tym ogłoszeniem
Wyświetlenia
Data dodania
Ostatnio widziany
Obserwujących
Wysłane zapytania
Odsłony telefonu
Poczta Polska S.A.
Konto firmowe
Na Lento.pl od 20 cze 2025
Strona użytkownika
- Wypromuj ogłoszenie
- Zgłoś naruszenie
- Drukuj ulotkę
- Edytuj/usuń ogłoszenie
- Udostępnij ogłoszenie
- Dodaj na Facebook














